跳至內容區

榮際實業產品專區

以上/以下標題 都可點擊

  • 透光板/不透光板材
    • 板材產品造型預覽
    • 色板(花紋顏色)
  • 台面材(洗手台面)
    • MB常用標準方型台面
    • MKK菜刀型台面
    • 一體成型水槽(馬槽型)
    • 小洗手台系列(規格品)
    • 廚具台面(MKHH模具)
    • 廚具台面(平板接合式)
    • 浴櫃特殊加工
    • 色板(花紋顏色)
  • 常見問題專區
    • 1.認識洗手台面與槽盆
    • 2.工廠製造流程
    • 3.如何快速下單
    • 4.台面畫單教學
    • 槽盆及開孔尺寸表
    • !拉桿式水龍頭!
  • 預約諮詢
    • 聯絡我們
    • !訂購注意事項!
    • *訂單範本下載*
  • 槽盆及開孔尺寸表

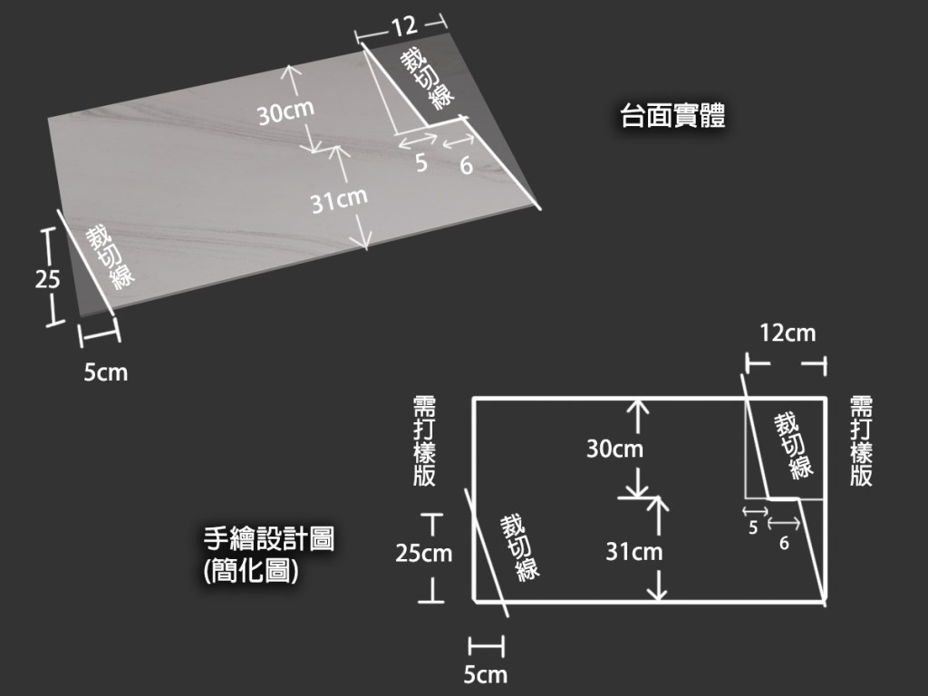
4-1.裁切-內外斜、繞柱子

裁切指示線,只要畫面乾淨清楚,畫虛線或實線皆可,畫圖方式參考下列說明

(圖可左右滑動更換)

分享此文:

  • 分享到 X(在新視窗中開啟) X
  • 分享到 Facebook(在新視窗中開啟) Facebook
喜歡 正在載入...
榮際實業產品專區, 在WordPress.com寫部落格.
    • 榮際實業產品專區
    • 註冊
    • 登入
    • 複製短網址
    • 回報此內容
    • 管理訂閱
%d